School in Kent, 2015–current
Radnor House School, Sevenoaks is a co-educational school for children aged 3 to 18, situated within the historic Combe Bank estate and grounds.
The School’s buildings include a grade I listed Palladian house, built in the 1720s on the site of an earlier Tudor house, for Colonel John Campbell (latterly the 4th Duke of Argyll). The gardens also date from the 18th century and are listed grade II*. An early 19th century stable block, listed grade II, is also situated within the grounds.



We have worked with the school over the past few years on a variety of projects, from restoration work to remodelling of internal spaces, and landscape improvements. During an early commission we researched the history of the house, and prepared a heritage assessment that has informed all subsequent projects.
Our work to date includes: façade restoration and repairs, including the removal of an unsympathetic later addition to the rear of the main building; a new science department (remodelling a late 20th century building); VIth form study and common room; preparatory school remodelling and renovations; improved sports fields and associated facilities, and; entrance and landscape improvements (including the planting of 420 trees following a successful grant application to the Woodland Trust).

West elevation showing the later additions to the original Palladian house



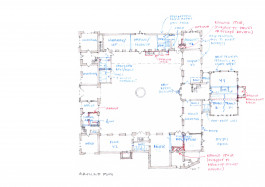
Remodelling and removal of a mid-20th century addition




Combe Bank was designed by the architect Roger Morris (1695–1749), who is best known for his long standing collaboration with Henry Herbert the 9th Earl of Pembroke, including; Marble Hill House in Twickenham (1724–29); the White Lodge, Richmond Park (1727-28); and the Column of Victory at Blenheim Palace (1730).
In its original form the house comprised a square two-storey form of three bay elevations and a pyramidal main roof with central octagonal lantern. Nikolaus Pevsner suggested the house was inspired by Lord Burlington’s Tottenham Park in Wiltshire (1721). The corner towers also bear a resemblance to Inigo Jones’ Wilton House (1647). An elevation study for the house was illustrated in the fourth volume of Vitruvius Britannicus, published in 1767, and a number of drawings and sketches of Combe Bank survive in prominent drawing collections.

Elevation study for Combe Bank published in the fourth volume of Vitruvius Britannicus (1767)
Although several rooms with mid-18th century decoration survive intact, the house has been significantly altered during successive changes of ownership, with large additions to the north side from the late 18th through to the early 20th century. Robert Adam designed two additional wings to the north elevation for Campbell’s son Frederick, although there is no evidence of these today. An extension may have been demolished during restoration work following a fire at the house in 1807, although this remains unclear. The house was further altered in the nineteenth century by architects including Daniel Asher Alexander. The architect of the stable block, completed in 1809, is not known; but although much altered it remains a well proportioned composition in its own right.


Section through the stable block (now Prep School)

The gardens incorporate a number of decorative urns, possibly by the sculptor Thomas Parsons, and other architectural features including an 16th century well-head. One of two wooden summer houses erected to the east of the house in the mid-18th century still survives. Lebanon Cedars and a Beech walk were planted at around the time the house was first extended, and ornamental caves and grottos were excavated in the early 19th century, close to an ice house and ornamental stone bridge. It is also likely that, at this time, the road leading to Sundridge was sunk into a cutting where it crossed the axis from the main entrance. This created the effect of a ha-ha when viewed from the house.

Garden pavilion dating from the mid-18th century

Field sports store designed as a new garden pavilion

The Salon interior, designed by Walter Crane in the 1880s

Early 20th century Adam style interior by Walter Cave


Design development sketches for VIth form study and common room within the former ballroom
During the late 19th century, in the ownership of the physicist William Spottiswoode, the house is known to have been visited by a number of figures from the Arts and Sciences, including; Alexander Pope; William Kent; Charles Darwin, TH Huxley, Oscar Wilde and Matthew Arnold. Michael Faraday spent time at Combe Bank and it was the site of a number of his experiments with electricity and magnetism.
The artist Walter Crane, an associate of William Morris, remodelled the salon in the 1880s; including a frieze that contains a series of early C16 Florentine paintings. The main entrance was remodelled in around 1900, to designs attributed to Richard Norman Shaw.
In the first decade of the 20th century the estate was bought by the chemist and industrialist Ludwig Mond, who commissioned a ballroom and drawing room, designed by Walter Cave in the Adam style. The landscape setting was also further embellished by the Mond family; with formal gardens close to the house, and paths lined with Beech and Yew. Many of the specimen trees that can be seen today were planted at this time. The Mond family were also keen early motorists and aviators; the stables once held a collection of early cars, and part of the estate used as an airfield by the de Bolotoff Company who built a Voisin type triplane for Robert Mond.


In the 1920s the 520 acre estate was divided and sold in lots. The House and surrounding grounds became a convent and school, and a further extension was completed in 1931. Subsequent developments have included a gym and an extension to the former stable block by the architects Raworth, Hill and Browne (both dating from the 1960s), and more recently a swimming pool, sports hall, and further classrooms.
We continue to work with the School to adapt Combe Bank to their needs, whilst balancing the ongoing stewardship of significant historic buildings and their parkland setting.




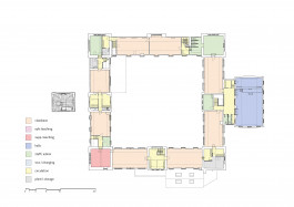
Sketches and drawings describing the remodelling of the Prep School


Illustrative views of the Prep School library



Remodelling of a late 20th century building as a new science department
Related projects:
School in Kent, 2015–current
Radnor House School, Sevenoaks is a co-educational school for children aged 3 to 18, situated within the historic Combe Bank estate and grounds.
The School’s buildings include a grade I listed Palladian house, built in the 1720s on the site of an earlier Tudor house, for Colonel John Campbell (latterly the 4th Duke of Argyll). The gardens also date from the 18th century and are listed grade II*. An early 19th century stable block, listed grade II, is also situated within the grounds.



We have worked with the school over the past few years on a variety of projects, from restoration work to remodelling of internal spaces, and landscape improvements. During an early commission we researched the history of the house, and prepared a heritage assessment that has informed all subsequent projects.
Our work to date includes: façade restoration and repairs, including the removal of an unsympathetic later addition to the rear of the main building; a new science department (remodelling a late 20th century building); VIth form study and common room; preparatory school remodelling and renovations; improved sports fields and associated facilities, and; entrance and landscape improvements (including the planting of 420 trees following a successful grant application to the Woodland Trust).

West elevation showing the later additions to the original Palladian house
Combe Bank was designed by the architect Roger Morris (1695–1749), who is best known for his long standing collaboration with Henry Herbert the 9th Earl of Pembroke, including; Marble Hill House in Twickenham (1724–29); the White Lodge, Richmond Park (1727-28); and the Column of Victory at Blenheim Palace (1730).
In its original form the house comprised a square two-storey form of three bay elevations and a pyramidal main roof with central octagonal lantern. Nikolaus Pevsner suggested the house was inspired by Lord Burlington’s Tottenham Park in Wiltshire (1721). The corner towers also bear a resemblance to Inigo Jones’ Wilton House (1647). An elevation study for the house was illustrated in the fourth volume of Vitruvius Britannicus, published in 1767, and a number of drawings and sketches of Combe Bank survive in prominent drawing collections.


Elevation study for Combe Bank published in the fourth volume of Vitruvius Britannicus (1767)
Although several rooms with mid-18th century decoration survive intact, the house has been significantly altered during successive changes of ownership, with large additions to the north side from the late 18th through to the early 20th century. Robert Adam designed two additional wings to the north elevation for Campbell’s son Frederick, although there is no evidence of these today. An extension may have been demolished during restoration work following a fire at the house in 1807, although this remains unclear. The house was further altered in the nineteenth century by architects including Daniel Asher Alexander. The architect of the stable block, completed in 1809, is not known; but although much altered it remains a well proportioned composition in its own right.


Section through the stable block (now Prep School)
The gardens incorporate a number of decorative urns, possibly by the sculptor Thomas Parsons, and other architectural features including an 16th century well-head. One of two wooden summer houses erected to the east of the house in the mid-18th century still survives. Lebanon Cedars and a Beech walk were planted at around the time the house was first extended, and ornamental caves and grottos were excavated in the early 19th century, close to an ice house and ornamental stone bridge. It is also likely that, at this time, the road leading to Sundridge was sunk into a cutting where it crossed the axis from the main entrance. This created the effect of a ha-ha when viewed from the house.


Garden pavilion dating from the mid-18th century

Field sports store designed as a new garden pavilion


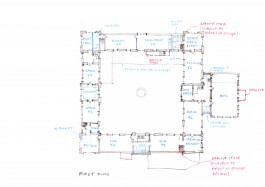
Design development sketches for VIth form study and common room within the former ballroom
During the late 19th century, in the ownership of the physicist William Spottiswoode, the house is known to have been visited by a number of figures from the Arts and Sciences, including; Alexander Pope; William Kent; Charles Darwin, TH Huxley, Oscar Wilde and Matthew Arnold. Michael Faraday spent time at Combe Bank and it was the site of a number of his experiments with electricity and magnetism.
The artist Walter Crane, an associate of William Morris, remodelled the salon in the 1880s; including a frieze that contains a series of early C16 Florentine paintings. The main entrance was remodelled in around 1900, to designs attributed to Richard Norman Shaw.
In the first decade of the 20th century the estate was bought by the chemist and industrialist Ludwig Mond, who commissioned a ballroom and drawing room, designed by Walter Cave in the Adam style. The landscape setting was also further embellished by the Mond family; with formal gardens close to the house, and paths lined with Beech and Yew. Many of the specimen trees that can be seen today were planted at this time. The Mond family were also keen early motorists and aviators; the stables once held a collection of early cars, and part of the estate used as an airfield by the de Bolotoff Company who built a Voisin type triplane for Robert Mond.


In the 1920s the 520 acre estate was divided and sold in lots. The House and surrounding grounds became a convent and school, and a further extension was completed in 1931. Subsequent developments have included a gym and an extension to the former stable block by the architects Raworth, Hill and Browne (both dating from the 1960s), and more recently a swimming pool, sports hall, and further classrooms.
We continue to work with the School to adapt Combe Bank to their needs, whilst balancing the ongoing stewardship of significant historic buildings and their parkland setting.




Sketches and drawings describing the remodelling of the Prep School




Remodelling of a late 20th century building as a new science department
Related projects: